流态回填土搅拌站-定制各类搅拌站设备、砂浆生产线
1.系统生产实现一键启停,具备自动和手动两种操作方式,启动、运行、?;轿炔踩煽浚魃璞妇哂泄乇;?。
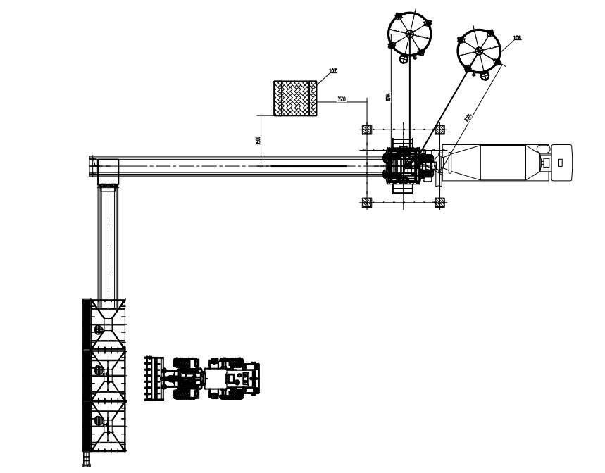
2.所有转动部位设置防护罩,各检修平台设置栏杆,避免存在安全隐患。
3.系统所用称重传感器精度等级不低于C3级。
4.骨料配料系统每种骨料单独计量,计量方式采用高精度电子秤,连续计量的计量精度±2%。

5.皮带输送机与搅拌机主轴同向布置,并保证落料点在搅拌机两主轴中间。
6.粉仓设置仓顶除尘器,保证无明显粉尘外溢,锥段设置气动破拱装置保证供料顺畅。
7.供水系统设置流量计,实现对供水流量检测和计量,通过调整供水重量调节每盘注水量。
8.控制系统能够实现两种骨料和两种粉料配料控制、系统供水控制、搅拌机控制等功能,满足一键启动生产控制。
9.所有设备都具有在控制柜上手动操作功能、电脑上单机操作和自动运行操作功能。

山东冠成机械,生产混凝土搅拌站,湿拌砂浆设备,干粉砂浆设备,固废处理设备,预拌砂浆设备,特种砂浆设备,干混砂浆设备,石膏砂浆设备,腻子粉设备,螺旋输送设备,搅拌站附件等,非标设计制造,随时欢迎社会各界朋友莅临我厂参观指导,共同发展,共创美好未来!
电话:17661205858
流态回填土搅拌站-定制各类搅拌站设备、砂浆生产线
| 上一条:疫情防控持续向好,防控政策更加优化完善,山东冠成诚邀新老朋友莅临公司参观考察混凝土搅拌站设备、干粉砂浆设备 | 下一条:混凝土搅拌站的操作流程 | 模拟演示 |

咨询热线:
